DOUBLE-WIDE LOT MODELS
Atlantic Home Solutions’ double-wide mobile homes are ideal for those who love all the benefits of a mobile home, but are looking for a little more space. With a minimum width of 20 feet, you’ll have plenty of room for family, friends, and entertaining. All of our homes are fully customizable to your specifications
Don’t see what you like? Browse our many off-lot options available for order through our partnerships with New Era and Colony.
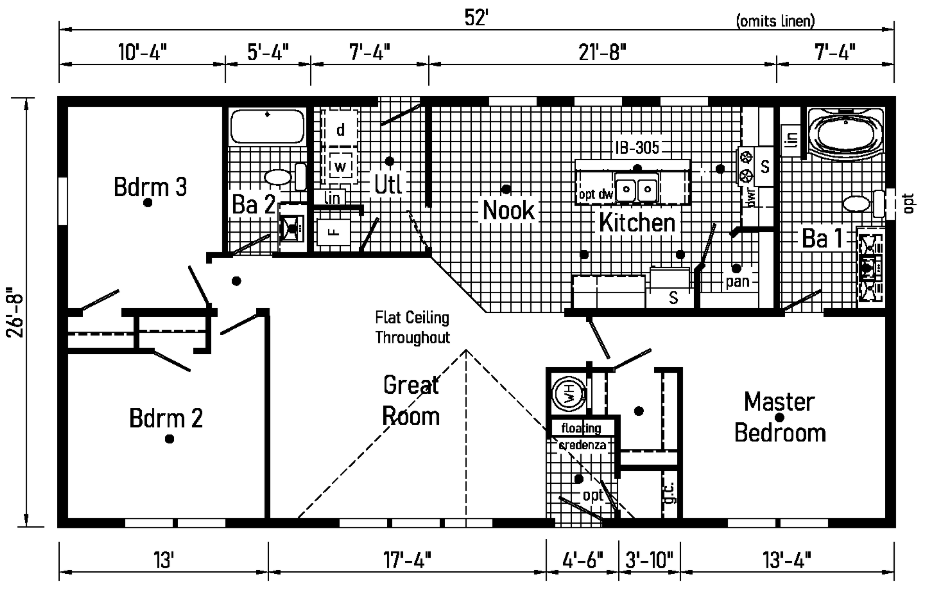
Colony Eastland Concepts Ranch
A32114
AVAILABLE TO ORDER!
Type: Double-Wide
Square Feet: 1,387
Bedrooms: 3
Bathrooms: 2
Dimensions: 28′ x 52′
Price: $138,000
LOT MODEL ON SITE
LOT MODEL FOR SALE
Due to continuous product development and improvement, prices and materials are subject to change without notice
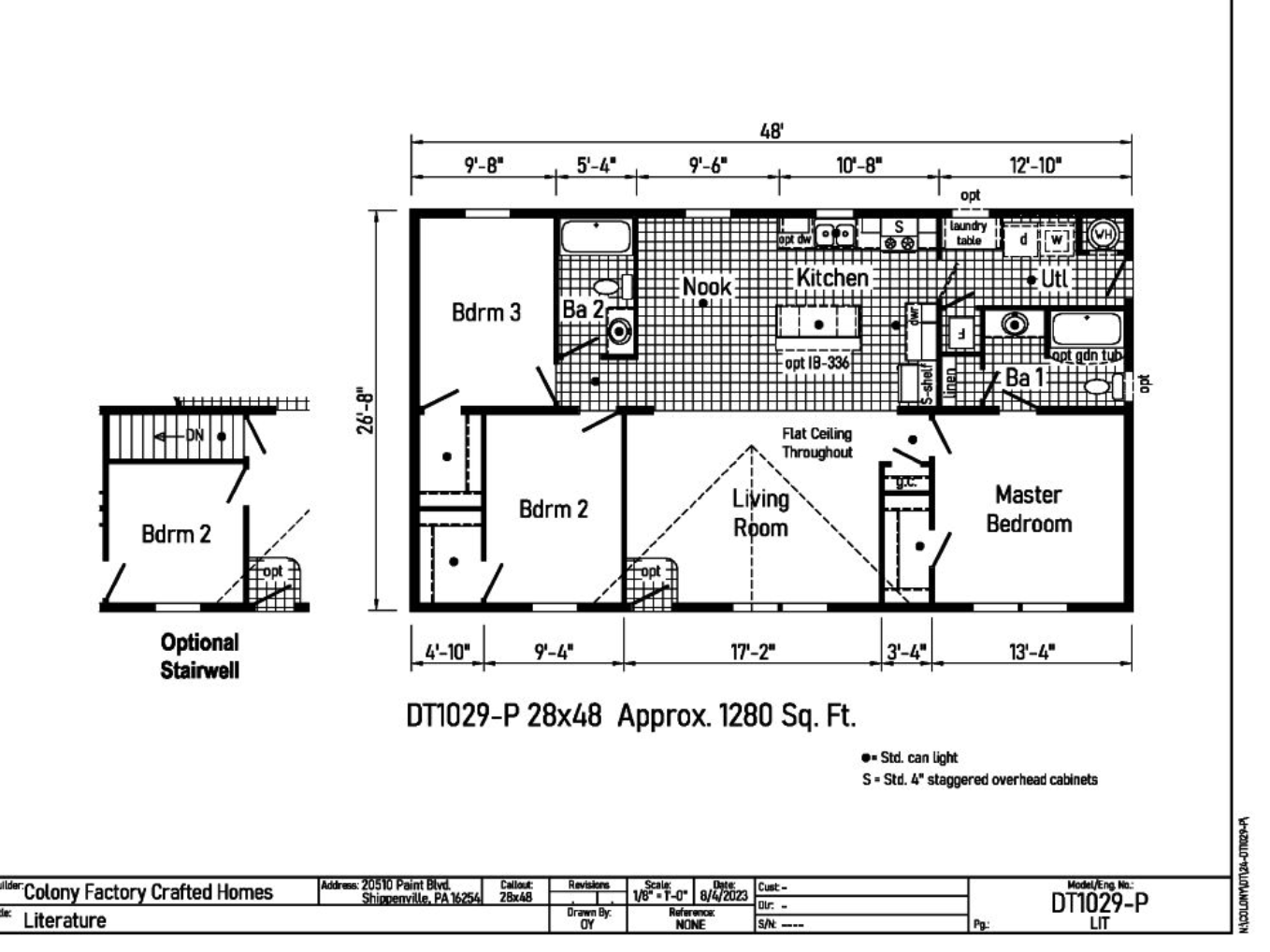
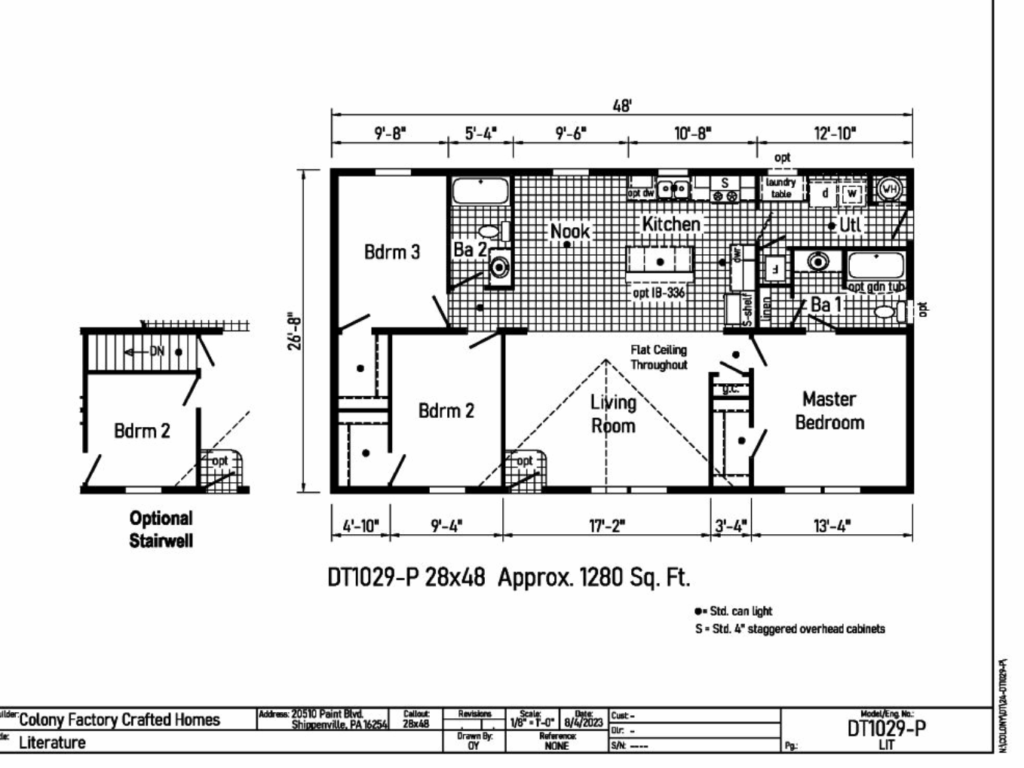
Colony Beacon Prestige Ranch
DT1029-P
LOT MODEL ON SITE
Value Series Home
Type: Double-Wide
Square Feet: 1, 280
Bedrooms: 3
Bathrooms: 2
Dimensions: 28′ x 48′
Base Price:$124,000
LOT MODEL ON SITE
LOT MODEL NOT FOR SALE
Due to continuous product development and improvement, prices and materials are subject to change without notice.
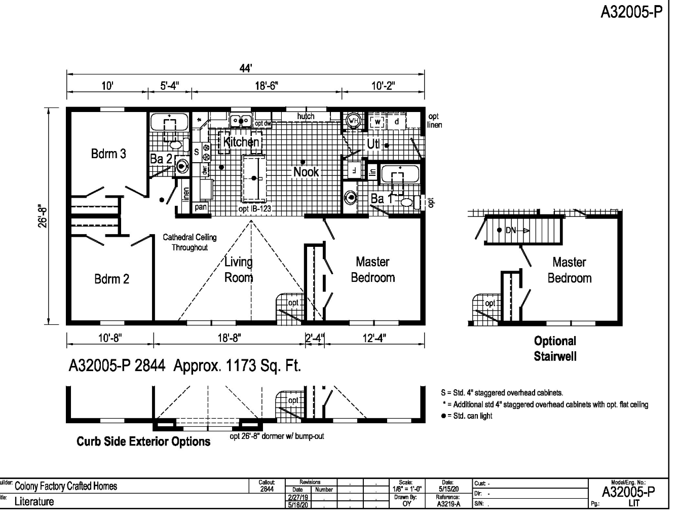
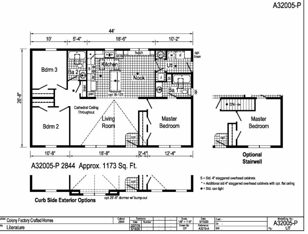
Colony Eastland Concepts Ranch A32005
AVAILABLE TO ORDER!
Type: Double-Wide
Square Feet: 1,173
Bedrooms: 3
Bathrooms: 2
Dimensions: 28′ x 44′
Base Price: $125,000
NOT ON SITE
Due to continuous product development and improvement, prices and materials are subject to change without notice
Colony Eastland Concepts Ranch A32015-P
LOT MODEL
AVAILABLE TO ORDER!
Type: Double-Wide
Square Feet: 1,387
Bedrooms: 3
Bathrooms: 2
Dimensions: 28′ x 60′ with porch
Price: $155,000
LOT MODEL ON SITE
LOT MODEL NOT FOR SALE
Due to continuous product development and improvement, prices and materials are subject to change without notice
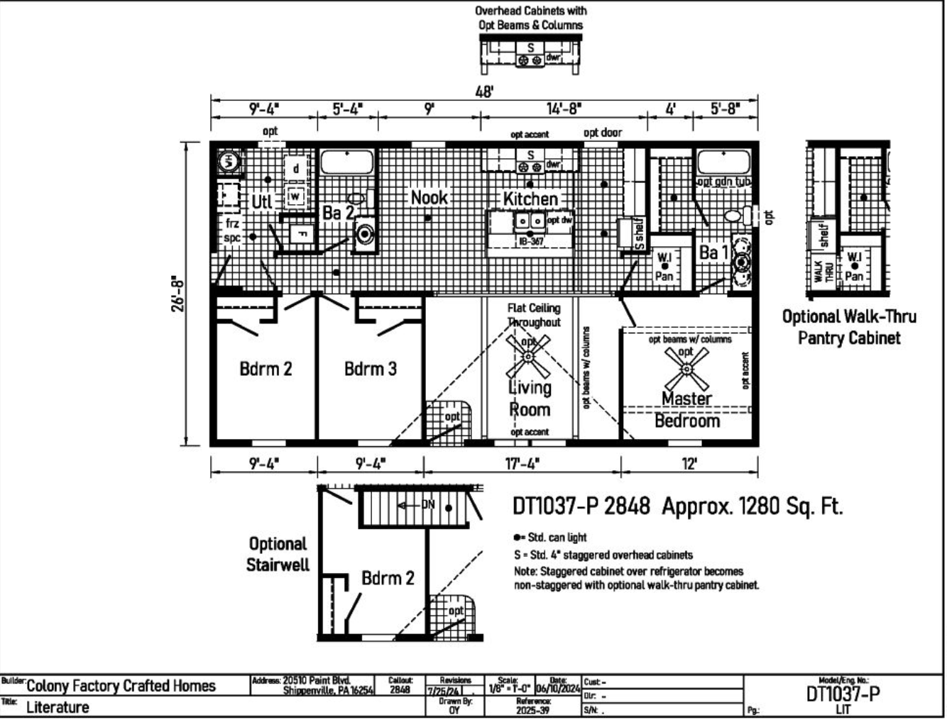
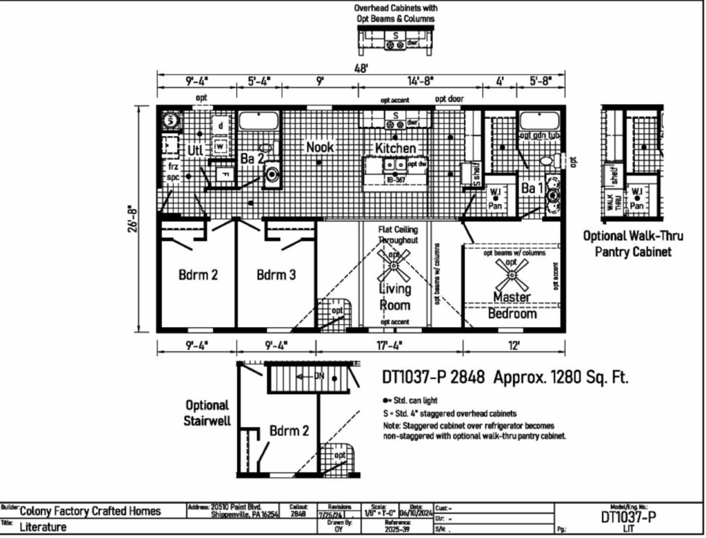
Colony Beacon Prestige Ranch
DT1037
AVAILABLE TO ORDER!
Type: Double-Wide
Square Feet: 1,493
Bedrooms: 3
Bathrooms: 2
Dimensions: 28′ x 48′
Base Price: $125,000
NOT ON SITE
Due to continuous product development and improvement, prices and materials are subject to change without notice.






























































